
Oak Harbor Residences is the first luxury development by DMCI Homes which is situated at Jackson Avenue, Asiaworld City, Brgy. Don Galo, Marina Bay, Parañaque City, Philippines.
View of the most beautiful sunset of Manila Bay your forever! Feel the breeze of the air gushing thru your home.
Strategically located near Commercial Areas such SM Mall of Asia, Uniwide Coastal Mall, Pagcor Entertainment City, Solaire Resorts and Casino City of Dreams, Manila Resorts World Bayshore and Aseana City
PRICE RANGE
- 1 Bedroom – Php 9.99M to Php 11.988M
- 2 Bedroom – Php 10.59M to Php 15.09M
- 3 Bedroom – Php15.49M to Php 33.99M
- as of Dec. 9, 2016

GENERAL INFORMATION
Land Area : 11,871 sqm
No. of Buildings : 3
No. of Units (Westport and Lauderdale): 273 units No. of PS : 316 parking
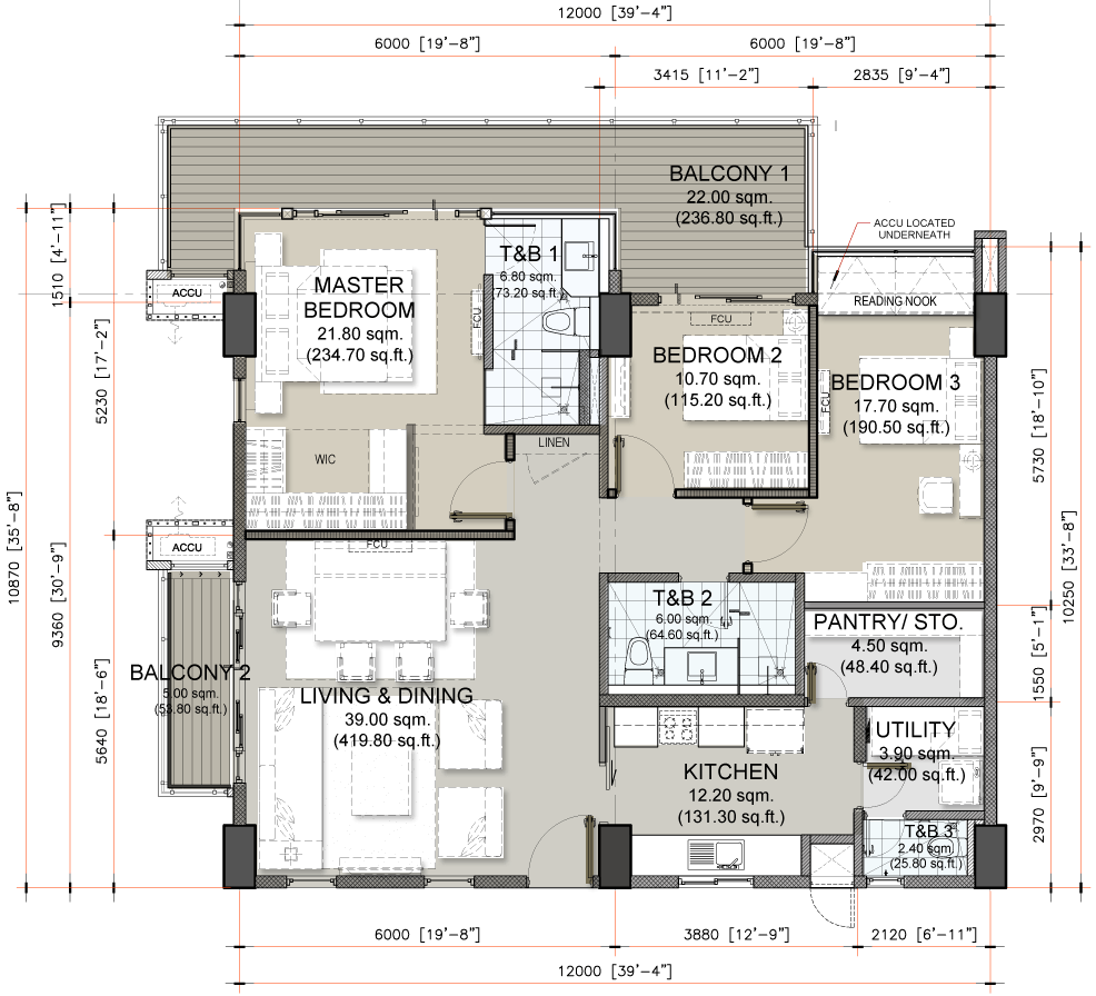
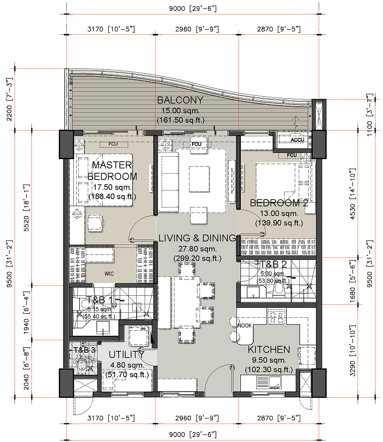
Unit Types : 1BR, 2BR, 3BR, Loft Units Unit Area : 72.5 sq meters to 225 square meters
SITE DEVELOPMENT PLAN

LOCATION


GALLERY
UNIT LAYOUTS




